Construit en 2002, ce charmant chalet mitoyen de 4.5 pièces se situe sur une parcelle de 358 m2 à la route du Sergnou 179a à Pra Riond, sur la Commune de Lens, à une altitude d’environ 1'245 m.
Situé dans un quartier résidentiel calme et verdoyant, ce chalet offre un environnement paisible avec une vue panoramique exceptionnelle sur les Alpes valaisannes garantie sur le long terme.
La parcelle dispose d’un jardin privatif agrémenté d’un plat de 75 m2, idéal pour profiter pleinement des beaux jours face à un panorama complètement dégagé. Les amoureux de nature apprécieront la proximité immédiate de nombreux itinéraires pédestres, notamment le Grand Bisse de Lens, offrant de magnifiques balades à pied ou à vélo. En voiture, le chalet se situe à 5 minutes du centre du village de Lens, de ses commerces et services, à 10 minutes du centre de Crans-Montana et à moins de 25 minutes de l’entrée d’autoroute de Sierre.
Entretenu avec soin, ce bien a été pensé avec des matériaux sobres et ne nécessite aucuns travaux conséquents. Sa disposition fonctionnelle offre tout le confort nécessaire. Au rez-de-chaussée, la cuisine entièrement équipée s’ouvre sur un séjour baigné de lumière grâce à ses charmantes fenêtres. Un poêle à bois apporte une touche authentique et chaleureuse à l’espace de vie.
À l’étage, trois chambres, dont deux qui donnent accès au balcon sud, séduisent par leur belle hauteur sous plafond et leur charpente apparente. Une grande salle de bain complète cette étage.
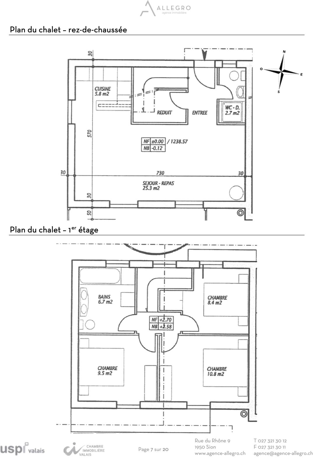
Le volume du chalet s’élève à 321 m3 bâtis (selon norme SIA 416) sur 105 m2 de surface brute habitable et 92 m2 de surface habitable nette. Le chalet est organisé de la manière suivante :
Au rez-de-chaussée :
Au 1er étage :
Le chalet dispose d'un garage-box et une place de parc extérieure attenante.
Il peut être occupé en résidence principale ou secondaire. La vente aux étrangers est autorisée en cas de résidence principale.
À noter qu’avec la nouvelle loi cantonale, il existe même une réserve à bâtir permettant un éventuel agrandissement.
Points forts :
La station de Crans-Montana propose une offre d’activités complète et attractive en toute saison.
En été, elle séduit par son vaste réseau de sentiers de randonnée, ses nombreux parcours VTT et son prestigieux parcours de golf. Les lacs, les événements et les animations estivales complètent cette offre variée.
En hiver, la station dispose d’un domaine skiable varié, adapté aussi bien aux familles qu’aux skieurs confirmés. Ski alpin, ski de fond, raquettes, snowpark, luge et activités après-ski permettent de profiter pleinement de la montagne dans une ambiance conviviale.
Tout afficher