Sion/Pont-de-la-Morge, bel appartement de 4.5 pièces de 104 m2 avec balcon et 2 places de parc

rue des Pommiers 8A, 1950 Sion

CHF 549'000.-
1
2
3
4
5
6
7
8
9
10
11
12
13
14
15
16
17
18
19
20
21
22
23
24
25
    25 photos     OpenStreetMap     Fichier ou plan   
  • Prix de vente : CHF 549'000.-
  • Surface habitable : ~ 104 m²
  • Disponible : A convenir

Description

Ce magnifique appartement de 4.5 pièces, d’une surface de 104 m2, se situe au 2ème étage de l’immeuble « Vergers du Soleil », construit en 2009 à la rue des Pommiers 8A, dans le charmant quartier de Pont-de-la-Morge (Commune de Sion).

Sa localisation est idéale à la frontière entre Sion et Conthey : vous profitez à la fois de la proximité immédiate des commerces et de l’autoroute, tout en bénéficiant d’un environnement calme, verdoyant et familial. L’école primaire du quartier ainsi que son jardin public accueillent les enfants jusqu’à la 5H, et plusieurs lignes de bus permettent de rejoindre le centre-ville de Sion en moins de 10 minutes.

Le séjour, ouvert sur la cuisine, est particulièrement lumineux. Orienté plein sud, il bénéficie d’un ensoleillement optimal toute l’année et d’une absence totale de vis-à-vis, garantie sur le long terme. L’appartement allie modernité et fonctionnalité grâce à des matériaux sobres, une distribution des pièces harmonieuse et de nombreux rangements intégrés. L’espace nuit comprend trois chambres confortables ainsi que deux salles d’eau, l’une équipée d’une douche, l’autre d’une baignoire et d’un espace pour colonne de lavage. Un généreux balcon orienté sud complète ce bien.

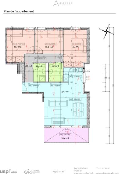
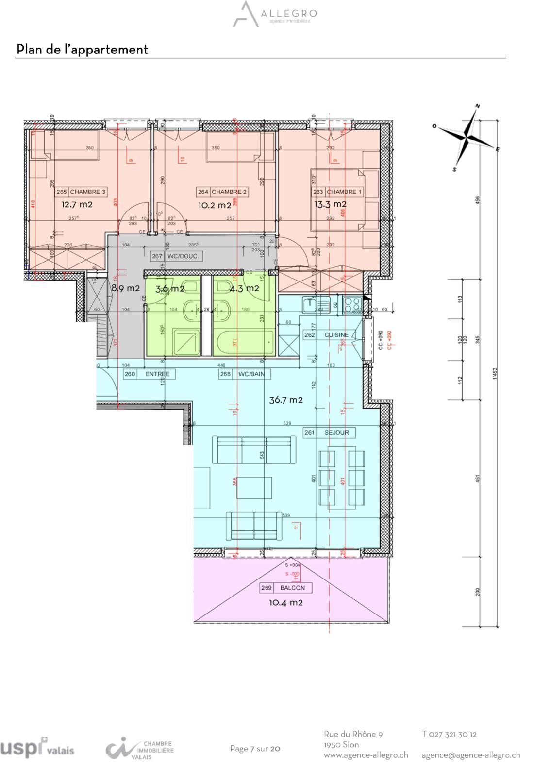
La surface habitable brute s’élève à 104.0 m2, à laquelle s’ajoute un balcon de 10.4 m2 (total de la surface de vente pondérée avec 1/2 balcon = 109.2 m2). L’appartement s’organise de la manière suivante en considérant les surfaces habitables nettes (=balayables) :

  • Un hall/corridor avec armoires intégrées de 8.9 m2,
  • Une grande pièce à vivre avec cuisine ouverte de 36.7 m2,
  • Une chambre parentale orientée nord avec armoires intégrées de 13.3 m2,
  • Deux chambres enfant orientées nord, l’une avec armoires intégrées de 12.7 m2 et l’autre de 10.2 m2, 
  • Deux salles d’eau, l’une avec baignoire de 4.3 m2 et l’autre avec douche de 3.6 m2, 
  • Un balcon de 10.4 m2.

Le bien comprend également deux places de parc extérieures qui peuvent être acquises en sus pour 15'000.- CHF/place, une cave et l’accès à une buanderie commune à l’Immeuble. Il est possible d’occuper ce bien en résidence secondaire.

Points forts :

  • à proximité de toutes les commodités
  • Quartier calme et verdoyant
  • Beaux volumes et ensoleillement
  • Appartement traversant sans vis-à-vis

Tout afficher

Détails


  • Pièce(s) : 4.5
  • Chambre(s): 3
  • Salle(s) d'eau: 2
  • Niveau: 2. Etage
  • Catégorie : Appartement
  • Réf. : 2168

 Exposition


 A proximité


 Environnement


 Extérieur


 Intérieur


 Ensoleillement et vue


Situation géographique

Voir en Street View    Voir sur Google Maps