Sierre, charmant appartement de 3.5 pièces de 57m2 proche du centre-ville avec terrasse privative RÉSERVÉ

Bottire 27A, 3960 Sierre

CHF 270'000.-
1
2
3
4
5
6
7
8
9
10
11
12
13
14
15
    15 photos     OpenStreetMap     Fichier ou plan   
  • Prix de vente : CHF 270'000.-
  • Surface habitable : ~ 57 m²
  • Disponible : Réservé

Description

Ce charmant petit appartement de 3,5 pièces se situe au rez-de-chaussée d’un bel immeuble construit en 1979 à la route de Bottire 27a, dans un quartier historique et prisé de la ville de Sierre.

La situation est idéale, à proximité immédiate du centre-ville et de l’ensemble de ses commodités (commerces, centres médicaux, écoles, jardin d’enfants…), tout en bénéficiant d’un cadre calme et verdoyant.

Le séjour lumineux, ouvert sur la cuisine, donne accès à une grande terrasse privative, véritable atout du bien, offrant un bel espace extérieur ainsi qu’un agréable dégagement. L’appartement est bien entretenu et ne nécessite pas de travaux de rénovation, à l’exception du remplacement éventuel des fenêtres.

Malgré sa surface compacte, l’appartement est bien agencé et offre deux petites chambres : les pièces sont proportionnées, fonctionnelles et agréables à vivre, ce qui en fait une opportunité idéale tant pour un usage personnel que pour un investissement.

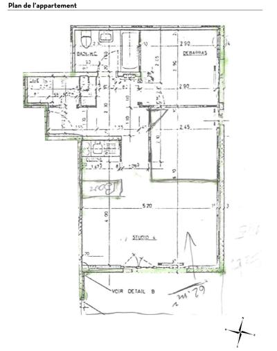
L’appartement dispose d’une surface habitable brute de 57.3 m2, à laquelle s’ajoute la terrasse de 8.3 m2 (total de la surface de vente pondérée avec la 1/2 terrasse = 61.5 m2). Il s’organise de la manière suivante en considérant les surfaces habitables nettes (=balayables) :

  • Un hall avec armoires de rangement de 15 m2,
  • Un séjour/cuisine de 21 m2 avec accès à la terrasse de 8.3 m2,
  • Un économat de 2.2 m2,
  • Deux chambres, de respectivement 8.7 m2 et 7.0 m2,
  • Une salle de bains/WC de 4.1 m2.

Une buanderie commune est à disposition des résidents à l’étage. A noter que ce bien ne comprend ni cave, ni place de parc.

L’appartement peut être occupé en résidence secondaire mais la vente aux étrangers n’est pas autorisée.

Points forts :

  • Quartier attractif et très recherché de Bottire
  • Bien parfaitement entretenu
  • Grande terrasse privative
  • Excellent rendement locatif

Tout afficher

Détails


  • Pièce(s) : 3.5
  • Chambre(s): 2
  • Salle(s) d'eau: 1
  • Niveau: rez-de-ch.
  • Catégorie : Appartement
  • Réf. : 2174

 A proximité


 Environnement


 Extérieur


 Intérieur


Situation géographique

Voir en Street View    Voir sur Google Maps