Sion, à louer une surface commerciale de 331 m2~ dans un bâtiment industriel entièrement rénové.

Route d’Aproz 8, 1950 Sion
    10 photos    Fichier ou plan   
  • S. utile: ~ 331m²
  • Disponible: début 2027
  •  

Description


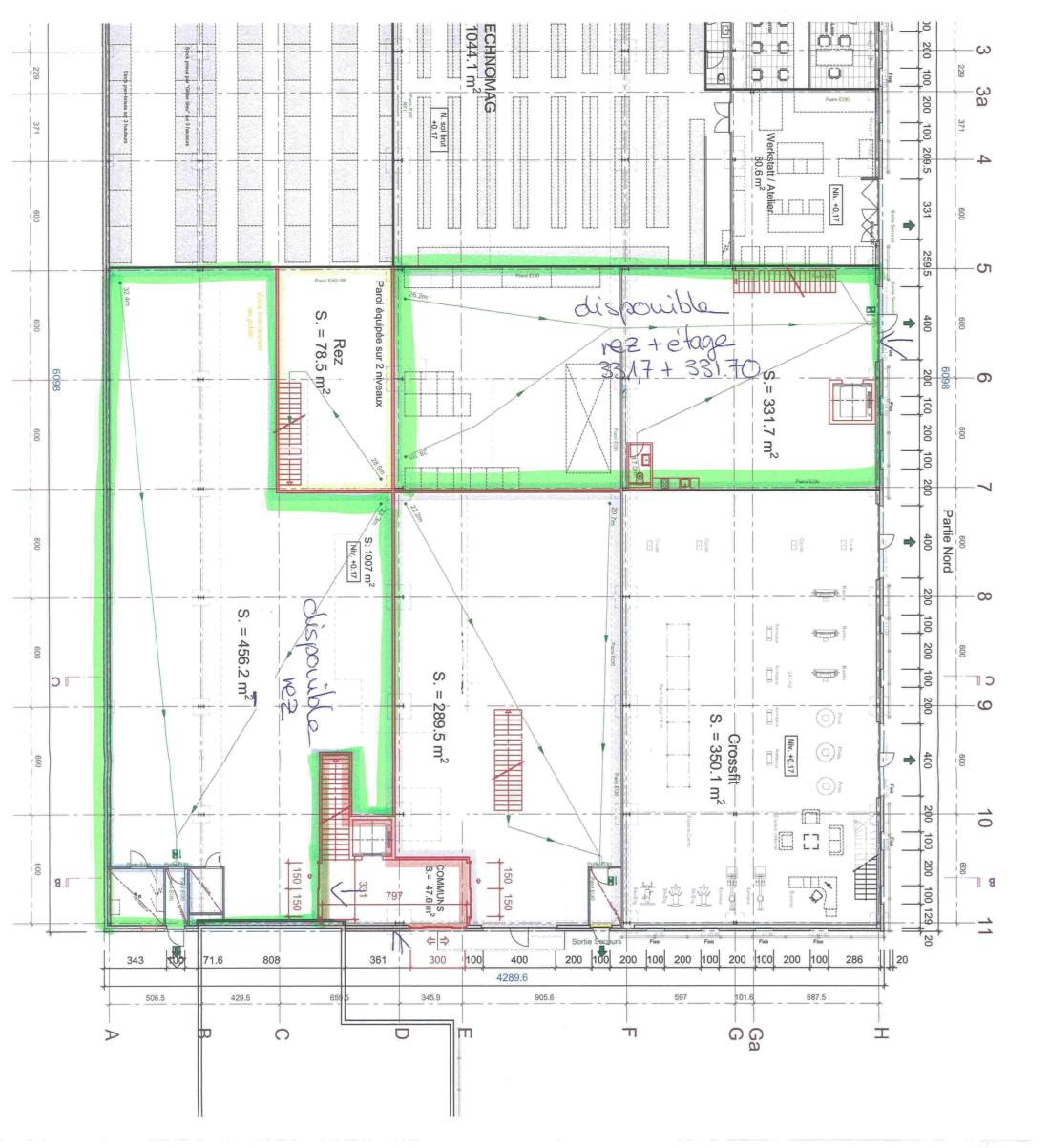
À louer dès début 2027, une surface commerciale située dans un bâtiment industriel entièrement rénové en 2021, idéalement implanté dans la zone industrielle ouest de Sion, à seulement 100 mètres de l’accès autoroutier, à proximité immédiate de l’aéroport et des transports en communs.

Situées à la Route d’Aproz 8, cette halle moderne propose plusieurs surfaces commerciales au rez-de-chaussée et au 1er étage, desservies par des escaliers et un monte-charge. Des places de parc extérieures sont disponibles en fonction des besoins de l’activité.

Cette surface est en cours de création et peut être adaptée en fonction de l’activité commerciale des preneurs.

Descriptif de la surface :

  • Cette surface est en cours de création et peut être adaptée en fonction de l’activité commerciale des preneurs.
    Descriptif de la surface :
    Surface no 2 au rez ouest de 331 m2 - CHF 220.-/annuel
    Possibilité de joindre surface no 2 du rez avec la surface no 3 au 1er étage de 331m2

Informations complémentaires :

  • Charges : acomptes de charge calculés en sus et en fonction de la surface.
  • Places de parc extérieures : 80.-/mois en sus et en fonction du lot loué.
  • Disponibilité : début 2027

Caractéristiques :

  • Accès aisé depuis l’autoroute A9 et proximité de l’aéroport de Sion.
  • Environnement dynamique et bien desservi.
  • Charge au sol au 1er étage : 300kg au m2, charge illimitée au rez.
  • Distance sous-toit : 3m60 avec lanterneaux qui s’ouvrent.
  • Monte-charge pour desservir les surfaces du 1er étage (480kg, 6 personnes, prévu pour des palettes européennes).
  • Équipements prévus (ventilation, chauffage, sanitaire, cuisinette, places de parc, etc.).
  • Possibilité de moduler les surfaces selon les besoins du locataire
  • Un emplacement stratégique pour vos commerces et/ou industrie.

Sion, capitale du Valais, bénéficie d’un cadre économique en plein essor. Ville universitaire avec la présence de la HES-SO et de l’antenne valaisanne de l’EPFL, elle constitue un pôle de compétence en ingénierie, santé avec le futur hôpital qui sera achevé sous peu, technologies et développement durable. Son tissu économique dynamique en fait un emplacement de choix pour développer une activité commerciale ou artisanale.

Dossier sur demande

Tout afficher

Détails


  • Niveau: rez-inf.
  • Type : Local commercial
  • Réf. : 1594-rez-331

Situation géographique

Voir en Street View    Voir sur Google Maps